casa gielle 2016 - 2019 built
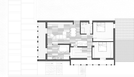
L'edificio si presenta come risultante di diversi interventi precedenti, rivelando l'assenza di una vera e propria identità architettonica. Il progetto mira ad uniformare l'aspetto dell'intero fabbricato attraverso un unico intervento: una maglia regolare viene sovrapposta ai prospetti che vengono così modulati secondo un nuovo ordine e logica, con una serie di lesene di metallo bianco. Il fronte principale diviene così un occhio architettonico dalla spiccata personalità. L'idea che sottende allo sviluppo del progetto si basa sullo sfruttamento delle caratteristiche circostanti l'abitazione ed in particolare della sua posizione privilegiata, su un versante collinare che guarda verso il centro cittadino.