ee37657b145c6a505fc93552494105bc3db93bac
fe7af655994c8e7209d78bf96cc1bbbcb94e87da

casa avu     2012 unbuilt

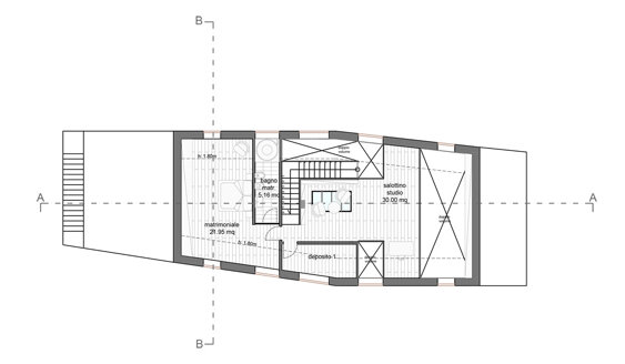
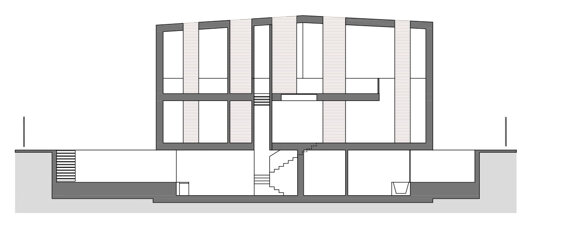
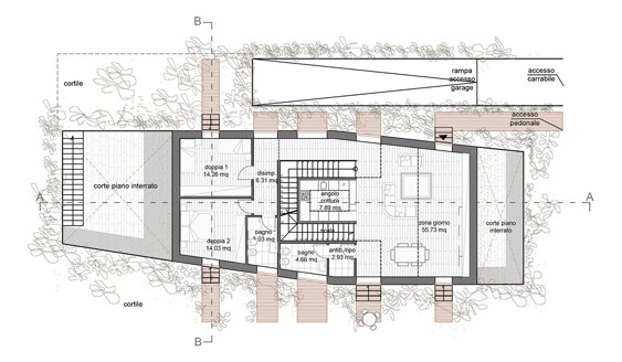
L’abitazione monofamigliare si presenta con aspetto solido e rassicurante interpretando un’ideale icona del semplice abitare, ostentando una vernacolare e massiccia volumetria. Un parallelepipedo a due falde viene “smussato” e trasformato in un impercettibile prisma irregolare, portando con se con se planimetricamente ed in alzato una tensione intrinseca in forma di valore aggiunto. La fascia perimetrale di cinque metri imposta dai regolamenti edilizi viene erosa in parte dalla rampa che accede al piano interrato, in parte dagli accessi pedonali alle porte finestre; il resto del giardino sprofonda in due corti interrate, riparati dall’introspezione.

61363da4baf22445352a7abfe189e8e235ab5e55
b75298cb643eaf56b1b6488aa8776a6e987c7b5f
fccbcc597c6cafaac18775b523f2876c82009c03

facebook
instagram
youtube
c8ef7d5f1b70c643b3ed9c353164bc2af6140474
9bde1331bfc2f63ecc1fff3ed0405fa128182220
74eb69c8f2691639af672b1cececff064683fe12
6369109aea9351e08147abcac7bfdf672cb551a9
1556d8284219d042e09ade8c35f3023c10f3fff3